Elektriline trumlitõstuk on käsitsemis- ja tõsteseade, mis on spetsiaalselt ette nähtud silindriliste materjalide jaoks, nagu õlitrumlid ja kemikaalitrumlid. See integreerib elektriajami, elektrilise tõstmise ja trumli kinnitamise/tõstmise funktsioonid, muutes selle sobivaks trummelmaterjalide laadimiseks, mahalaadimiseks, virnastamiseks ja kõrguse sobitamiseks.
Seadme elektriline hüdrauliline tõstesüsteem tagab sujuva ja täpse tõstejuhtimise, tõstes trumlid lihtsalt vajalikule kõrgusele ning vähendades käsitsi teisaldamise ja valamise riske. Spetsiaalse trummelklambri või tugistruktuuri kaudu tagab see trumlite stabiilse kinnituse ja kindla toe, vältides tõhusalt libisemist või kallutamist käsitsemise ajal.
Seda kasutatakse laialdaselt paljudes valdkondades, nagu järgmised
Keemia- ja pinnakattetööstuse rakenduse kirjeldus: keemia- ja pinnakattetööstuses esinevad materjalid sageli vedelate või poolvedelate ainete tünnidena. Need materjalid on rasked ja väga vedelad ning nõuavad käsitsemise ja tõsteseadmete kõrgeid ohutus- ja stabiilsusstandardeid. Elektriline trummeltõstuk on spetsiaalselt nende töötingimuste jaoks loodud ja seda saab kasutada mitmes tööetapis.
Tootmisliinidel ja segamisaladel suudavad seadmed tõsta keemilise tooraine trumlid, lahustitrumlid või värvitrumlid sujuvalt segistite, reaktorite või doseerimisseadmete etteandmiskõrgusele, tagades täpse joondamise ja vähendades käsitsi tõstmise ja valamise tegemisega seotud ohutusriske, vältides sellega materjali pritsmeid ja töövigu.
Käivitage video:
Funktsioon
1. Õlisilinder: suletud integreeritud silinder väldib tõhusalt õlileket ja parandab üldist ohutust.
2. Paksendatud C-kujuline teras: täiustatud paksemaks, tugevamaks ja vastupidavaks ning pika kasutuseaga.
3. Reduktor: usaldusväärne ja vastupidav, väike, kõrge ülekandetõhusus.






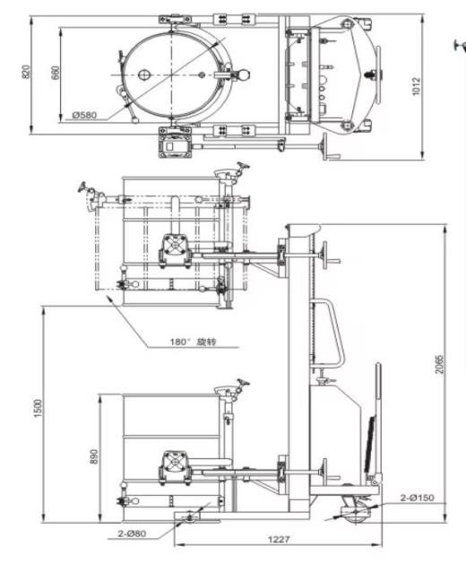
Toote spetsifikatsioonid
|
Toote nimi |
Elektriline trummeltõstuk |
|
Kandevõime (kg) |
450 kg |
|
Maksimaalne tõstekõrgus |
1600/2000 mm |
|
Võimsuse tüüp |
Käsitsi lükkamine ja elektriline tõstmine |
|
Üldmõõtmed (mm) |
1580 * 800 * 2080 mm |
|
Aku (V/AH) |
12V/120AH |
|
Pöörderaadius |
1280 mm |
Pakkimine & Elektriline trummeltõstuk


Paketi tüüp:
Pool-elektriline õlitrumli tõstuk on tavaliselt pakitud kile- ja vahtpakendisse ning kinnitatud kaubaalustega. Samuti saab seda vastavalt kliendi vajadustele pakkida puidust kastidesse, mis on stabiilsemad.
Meie eelisedElektriline trummeltõstuk:
Keskkonnakaitse, energiasääst ja odav -hoolduskulud: seda toidab peamiselt elektrienergia, mis on kütuseseadmetest keskkonnasõbralikum ja vastab rohelise tootmise vajadustele. See võtab kasutusele hooldusvabad-akud ja madala rikkemääraga disaini, madalate hoolduskulude ja lihtsa kasutamise.
Kasutades toiteallikana elektrit, ei tekita pool{0}}elektrilised veokid töötamise ajal heitgaase, vastates järjest karmistuvatele keskkonnastandarditele. Siseruumides töökeskkonnas on saastevaba -funktsioon eriti oluline, kuna see hoiab õhu värskena ja kaitseb töötajate tervist. Lisaks vajab see sisepõlemismootorit kasutavate täiselektriliste veoautodega võrreldes vähem elektrit, mis aitab vähendada energiatarbimist ja kulusid kokku hoida.
Kuum tags: elektriline trummeltõstuk, Hiina elektriliste trummeltõstukite tootjad, tarnijad, tehas










